Продается дом, 102.5 кв.м., /2 эт
| Стоимость | 4 000 000 |
|---|---|
| Комнат в доме | 3 |
| Категория земли | Садоводство |
| Тип комнат | раздельные |
| Право собственности | Посредник |
| Тип парковки | Открытая во дворе |
| Категория земли Avito | Садовое некоммерческое товарищество (СНТ) |
| Способ связи avito | По телефону и в сообщениях |
| Материал стен (Авито дома) | Бревно |
| Тип строения | Дом |
| Площадь, кв.м. | 102.5 |
| Площадь участка, сот | 10 |
| Этажность | 2 |
| Населенный пункт | СОНТ Радость |
|---|
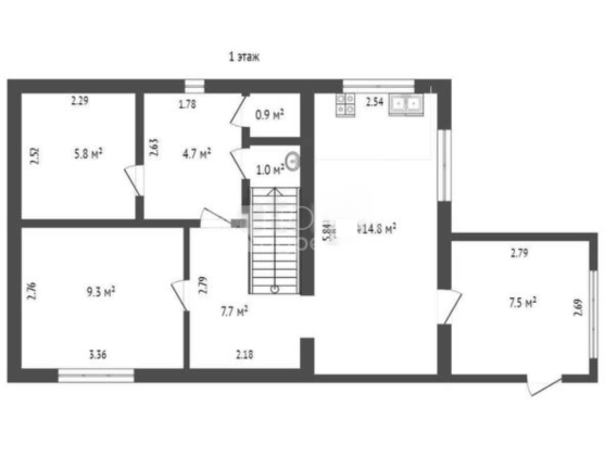
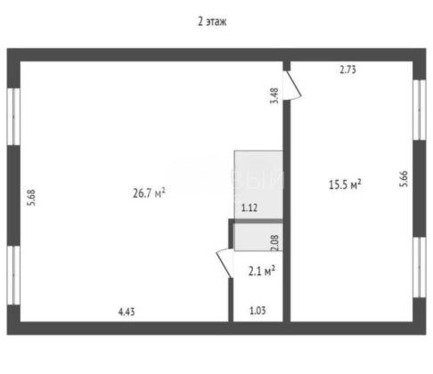
Продается дом общей плoщaдью 102,5 кв м.
Двухэтажный дом на участке 10 соток. Дом теплый. Материал стен-бревно, утеплитель-минвата, обшит сайдингом. Установлены пластиковые окна. На первом этаже располагается просторная кухня.14,8 кв.м., комната, баня. санузел. На втором этаже две светлые, просторные комнаты.
Участок правильной формы, огорожен забором из дерева. На участке располагаются кустарники, грядки. Сделана детская площадка для малышей. Также имеется туалет на улице, сарай, курятник.
Доп. описание: вода - скважина, септик, электрокотел.
Район: СОНТ "Радость". Всего в 30 км от города располагается дом для круглогодичного проживания с возможностью прописки.
Подъездные пути зимой чистятся.
Дом зарегистрирован. Документы готовы к сделке!
НАШИ ПРЕИМУЩЕСТВА:
Работаем с ИПОТЕКОЙ, материнским капиталом и опекой.
Полное юридическое оформление сделки мы берем на себя.
Показы в любое удобное для вас время по договоренности.
Дом можно приобрести в ипотеку или использовать материнский капитал/субсидию! В нашей компании есть ипотечный брокер, оказывающий весь комплекс услуг по приобретению дома в ипотеку. Мы берем всю рутинную работу по оформлению документации на себя!
Хотите посмотреть на дом в живую? Отлично, мы организуем показ!
НОВЫЙ АДРЕС - с нами быстро, выгодно, надежно !!! А ТАКЖЕ А НАШЕМ АГЕНТСТВЕ САМАЯ НИЗКАЯ КОМИССИЯ. С нами выгодно!
Позвоните и запишитесь на просмотр, завтра этого варианта может уже и не быть!



































